Lietuvos architektų rūmai
Atgal
Pagrindinis

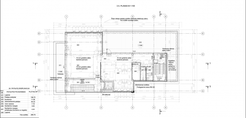
Prekybos paskirties pastato Jonavos g. 250, Kaune, statybos projektas

Jonavos g. 250, Kaunas

Prekybos paskirties pastatai

Naujo statinio statyba

Neypatingasis

2014 - 2015

2017

UAB ,,Meistro kodas"
Mindaugo Maksvyčio nuotr.

Rytis Mažuolis
Projekto architektūrinės dalies vadovas
A 550

Mindaugas Maksvytis
Architektas
A 2196

Rytis Mažuolis

Mindaugo Maksvyčio nuotr.
Mindaugo Maksvyčio nuotr.
Autorių iliustr.
Autorių iliustr.
Autorių iliustr.
Autorių iliustr.
Autorių iliustr.